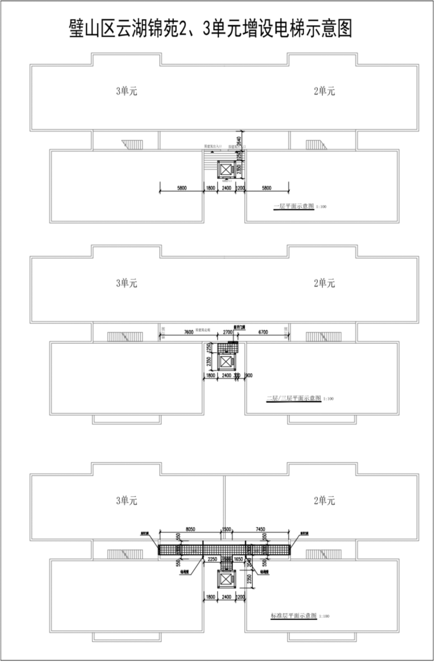
据璧山区青杠街道云湖锦苑2、3单元的业主申请,该单元拟安装1部电梯。根据《重庆市人民政府办公厅关于印发重庆市既有住宅增设电梯管理办法的通知》(渝府办发〔2023〕70号)相关要求,青杠街道现将相关材料予以公示,公开征求相关业主意见。若有意见或建议,请注明身份(应提交身份证复印件及房屋产权复印件、联系电话和邮箱),在公示期至公示期满之日起5个工作日(2026年4月8日)内将书面意见邮寄或直接提交至重庆市璧山区人民政府青杠街道办事处,逾期未提出的,视为放弃权利。若您认为是该项目增设电梯方案的利害关系人,在提交书面意见时,还应提供该项目增设电梯方案直接涉及您利益的证明材料。相关利害关系人可在公示期满之日起5个工作日(2026年4月8日)内,向重庆市璧山区人民政府青杠街道办事处提出书面听证申请,并提交相关证明涉及利害关系的材料,逾期未提出的,视为自动放弃听证权利。
公示时间:2026年3月25日至2026年3月31日
公示地点:1.小区入口和单元入口现场 2.重庆市璧山区人民政府网站
联系人:苏先生 电话:023-41781501
联系地址:青杠街道办事处物业管理岗604办公室
重庆市璧山区人民政府青杠街道办事处
2026年3月23日


回到顶部